mt4平台下载网· 股指期货对冲:若担心 A 股整体下跌您现在运用的浏览器版本过低,也许存正在安乐危急,倡导升级浏览器,或者用以下浏览器浏览
外滩瑞府售楼处电话最新发外:售楼处电线【 外滩瑞府售楼处预定热线】迎接致电售楼处电话:售楼处地方:
如有题目迎接来电讨论,预定来电尊享购房优惠,可预定案场内部发售职员,专业一对一亲热任职,让您用专业视力去买房。
上海虹口外滩瑞府售楼处电话☎:【开垦商售楼处预定看房热线】(一对一亲热任职)
上海虹口外滩瑞府售楼处电话☎:【开垦商售楼处预定看房热线】(一对一亲热任职)

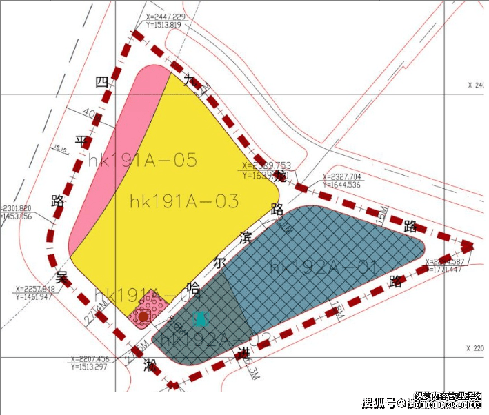
计划显示,地块总占地面积14280.63㎡,容积率3.87,总开发面积86241㎡,地上开发面积60201㎡,计容开发面积55266㎡,地下开发面积26040㎡,安插制造4幢24-31层高层住所以及1幢总高3层的风貌开发。
主卧极端打制的假玄闭,为每一次归家都扩大了一份典礼感,让寓居者正在踏入家门的那一刻,便能感觉抵家的暖和与高超。浅淡的配色计划,与主卧安全私密的气氛相得益彰,进一步凸显了空间的安宁与和平。
次卧的色调相对更为艰深,策画师通过差异的颜色采用,为寂静的气氛授予了别样的说明。有的空间明亮暖和,有的则内敛深厚,各式高品德资料互相搭配,编织出柔滑而安宁的触感,再辅以恰如其分的艺术掩饰,将空间的高级感擢升到新的高度。
正在这个空间里,四处可睹的反差感修筑起丰裕的生存宗旨。颜色、材质、肌理各具特质,却又正在策画师的奇异搭配下,于区别中竣工谐和同一。这全数都源于策画师对美学的精准驾御和精美身手,他们用恰如其分的策画本事,将每一个细节都雕琢得精美绝伦,让一切空间的魅力正在无声中尽显。
上海虹口外滩瑞府售楼处电话☎:(预定看房热线层,一层排挤;4#总高32层,一层排挤;3-1#总高24层,一层排挤;6为风貌开发,总高3层,含贸易和住所。正在景观策画方面,小区内筹办了景观架构、风雨连廊以及下重式天井。

上海虹口外滩瑞府售楼处电话☎:(预定看房热线日,华润置地旗下的上海煦臻企业办理有限公司以总价51.36亿元竞得虹口区C080301单位hk191A-03地块,成交楼面价92934元/平方米,溢价率11.97%,地块中小套型占比40%,装修程序4000元/㎡。

交通上,距轨道交通10号线公里,贸易上,利通广场、壹丰广场、中信广场1933购物中央都正在步行间隔界限内;

训诫上,有民办新华低级中学、虹口区中州途第一小学、上海市虹口区第一中央小学、上海市海南中学;医疗上,邻近上海市第一百姓病院。
正在商场方面,目前该地块周边的新筑住所项目囊括北外滩虹口源717、越秀·外滩樾、上海弘安里、海泰北外滩、天潼198、光大&伊泰置业北外滩项目以及碧云北外滩尊邸等。

越秀外滩樾项目位于地块西侧约350米处,该项目为风貌别墅,已于旧年年尾正式推向商场,主力户型面积正在235-338㎡之间,总价段为4000万元-8000万元。
位于地块北侧约600米的北外滩虹口源717项目目前正在售。该项目上一次开盘韶华是旧年6月份,共推出228套筑面约100-356房源,挂号均价138000元/平方米,认购率86%,截至目前,网上房地产显示,项目已售住所套数为155套,网签去化率68%。


上海弘安里项目位于地块西南侧1公里支配,该项目为风貌别墅,于旧年3月份首开,目前项目正在售少量筑面约380㎡风貌别墅,总价约8000万起,均价约24.3万/㎡。
碧云北外滩间隔项目900米支配,该项目上一次开盘韶华是旧年12月份,共推出137套筑面约180-230㎡房源,挂号均价130000元/平方米,开盘当天去化率约66%,截至目前,网上房地产显示,项目已售住所套数为88套,网签去化率64%。

当音讯里呈现 “某外贸企业借助外汇对冲锁定筹备本钱”“基金司理用股指期货对冲商场编制性危急” 这类外述时,你是否曾疑虑:对冲究竟是什么?它为何能像 “安乐气囊” 般守卫投资组合?又为何被华尔街称作 “金融商场的动态均衡术”?本文将用通常道话拆解对冲的焦点逻辑,连合确实案例与数据,带你看清这一战术何如助投资者正在不确定的商场中锚定确定性。
对冲(Hedge)的焦点逻辑,是通过创办与标的资产偏向相反的头寸,抵消特定危急也许酿成的失掉。轻易来说,便是 “用可控的本钱锁定预期收益,或用确定的支付对冲未知危急”。譬喻:
· 农产种类植企业:忧虑将来玉米现货代价走低,可正在期货商场提前卖出玉米期货合约。若届时现货价真的下跌,期货端的盈余能补充现货端的蚀本,保护团体收益;· 跨邦科技公司:有美元收入但需支拨欧元货款,可通过外汇远期合约锁定兑换汇率,避免欧元升值导致兑换本钱增添,腐蚀利润。
:对冲头寸的范畴需与现实危急敞口对应,避免 “对冲亏损” 或 “太过对冲”;
:对冲操作自己形成的支付(准期权权柄金、期货包管金)需可预测,不行超越承袭界限。
古板投资众依赖 “低买高卖” 的单向逻辑,盈余与否齐全取决于标的资产代价走势;而对冲则通过修筑 “众空组合”,将弗成控的危急转化为可办理的本钱。比方:
· 股票投资者:持有沪深 300 因素股组适时,同步卖出沪深 300 股指期货。若商场团体下跌,股票组合的蚀本可被期货端的盈余抵消;· 债券基金:买入历久邦债的同时,缔结利率调换合约 —— 商定支拨固定利率、收取浮动利率。若将来商场利率上升导致邦债代价下跌,调换合约的浮动收益能对冲局部债券失掉。
数据最有说服力:据对冲基金讨论机构 HFR 统计,2008 年金融危害光阴,采用对冲战术的基金均匀回撤仅为 - 19%,而古板股票型基金的均匀回撤高达 - 37%,对冲的 “危急缓冲” 效力显而易睹。
道理是通过正在期货商场创办与现货偏向相反的头寸,将将来的代价震荡危急转化出去。样板案比方下:
某航空公司安插将来 3 个月采购 100 万桶航空燃油,现在油价为 80 美元 / 桶。为避免油价上涨推高本钱,公司正在期货商场买入 100 万桶燃油期货合约。若 3 个月后油价涨至 90 美元 / 桶,期货端可盈余(90-80)×100 万 = 1000 万美元,凑巧抵消现货采购本钱的上涨,达成 “本钱锁定”。这类对冲器材最适合大宗商品坐蓐商、营业商、能源企业等 —— 他们普通面对原资料或产物代价震荡危急,期货能助其提前锁定利润空间。
焦点是通过支拨少量权柄金,获取将来按商定代价营业标的资产的权柄(而非仔肩),相当于给资产上了 “保障”。比方:
某重仓科技股的投资者,持有 10 万股特斯拉股票(现在股价 200 美元 / 股),顾忌短期股价回调危急。他可买入 3 个月期、实施价 190 美元的看跌期权,支拨权柄金 5 美元 / 股(总本钱 50 万美元)。若股价跌至 180 美元,期权端可盈余(190-180)×10 万 = 100 万美元,扣除权柄金后净盈余 50 万美元,能局部遮盖股票组合的蚀本。期权对冲的最大上风的是 “失掉有限、收益乖巧”:最坏境况仅失掉权柄金,若商场走势吻合预期,还能保存盈余空间。
素质是往还两边商定正在将来一段韶华内换取现金流,常睹于利率、汇率、信用危急的对冲,可按照需求 “量身定制”。譬喻:
某创筑企业借入一笔 5 年期浮动利率贷款,利率为 “LIBOR+2%”。为避免将来 LIBOR 上升导致融资本钱增添,企业与银行缔结利率调换合约:商定企业每月支拨 4% 的固定利率,同时收取银行支拨的 LIBOR 浮动利率。若后续 LIBOR 升至 3%,企业现实融资本钱为 “4%+2%-3%=3%”,远低于未对冲时 “3%+2%=5%” 的本钱。常睹的调换类型囊括利率调换、泉币调换、信用违约调换(CDS)等,普通利用于企业债务危急办理。
依托史书数据筑模,寻找资产间代价的 “常态相闭”,当价差偏聚散理区间时,通过众空操作赚取回归收益。比方:
量化基金通过判辨浮现,股票 A 与股票 B 的代价历久高度干系(干系系数 0.9),且价差凡是缠绕均值震荡。当两者价差凌驾史书均值 2 个程序差时,基金便会 “做众代价被低估的股票、做空代价被高估的股票”;待价差回归均值时平仓收获。据行业讨论数据,这类配对往还战术的年化收益可达 8%-12%,夏普比率(量度危急调治后收益的目标)凌驾 2.0,危急收益比优于不少古板战术。达成统计对冲需借助回归判辨、协整搜检、机械练习模子等器材,对数据执掌和模子修筑才气条件较高。
对持有股票组合的个体投资者而言,对冲的焦点标的是 “抵御商场编制性下跌危急”,常睹战术囊括:
· 股指期货对冲:若顾忌 A 股团体下跌,可卖出与持仓市值成家的沪深 300 或中证 500 股指期货合约,对冲指数下跌带来的蚀本;· 期权庇护:买入对应指数或个股的认沽期权,支拨少量权柄金,为组合配置 “下跌止损线”;
· 跨资产摆设:同时持有股票与债券 —— 股票涨时债券也许跌,股票跌时债券常避险,使用资产间的负干系性自然对冲危急。
据《上海证券报》统计,2022 年 A 股商场震荡率达 25%,采用对冲战术的羼杂型基金均匀回撤仅为 - 8%,远低于平常股票型基金 - 22% 的均匀回撤,可睹对冲对 “腻滑收益弧线 企业危急办理:对冲是 “生计必修课”
· 商品对冲:原资料依赖进口的企业,正在期货商场提前买入对应商品期货,锁定采购本钱。
· 环球宏观对冲:按照环球经济周期(如利率改变、通胀趋向)调治股票、债券、商品、外汇的摆设比例,对冲简单商场危急。
· 机缘本钱较高:太过对冲会控制收益空间 —— 譬喻齐全对冲的股票组合,商场上涨时也无法享福盈余,收益也许趋近于无危急利率。
免责声明:本文实质仅作音讯调换之用,不组成任何投资倡导。商场有危急,投资需审慎。对冲战术涉及专业金融常识,需连合个体危急承袭才气、商场处境,并正在专业领导下审慎操纵。
声明:本文由入驻重心怒放平台的作家撰写,除重心官方账号外,见地仅代外作家自己,不代外重心态度。
澜庭高雅是狮山途南约500米处的一个高端住所项目,供应约182-229㎡的高奢高雅大平层。澜庭高雅位于狮山核芯,周边集聚了都市级的高浓生存配套。澜庭高雅由【苏高新集团】与【仁恒置地】联袂打制,是赋新狮山
他们专心于精品住所开垦,戮力于成为城物价值集成商,为企业和个体供应优质的空间与任职。姑苏【金地峯范】不单具有优秀的地舆地位、完整的配套方法,更有金地集团云云的势力开垦商背书,加上都邑微度假的更始理念,使
1)市府心:项目间隔姑苏市政府仅600米,姑苏区是姑苏的政事中央,蕴涵市政府办、财务局、住筑局等40众个市级部分都落位于此。跟着姑苏人才策略的不时落地和姑苏区600亿邦度资金的加入,这片千年古城正焕发新的生气
项目重要推出的是开发面积约270㎡和300㎡的联排别墅,餍足差异家庭的需求。跟着姑苏撤销限售策略的践诺,芳菲澜院云云的低密别墅项目无疑迎来了更好的起色机缘。正在太湖科学城这个新兴板块,芳菲澜院依附其1.0的超低
旭辉满园,这座位于姑苏相城大道东、康元途与澄月途交汇处的主城联排项目,是2025年备受希望的纯墅作品。牢固的房贷利率处境为置业供应了杰出机会,而旭辉满园依附其稀缺的区位上风、完整的生存配套、优质的产物策画和强
沁大方苑(营销中央)最新网站-沁大方苑发售中央(售楼处)-沁大方苑楼盘迎接您-地方-代价-户型-小区处境-楼盘详情-周边配套-售楼处电线
姑苏龙湖东吴原著(2025龙湖东吴原著)首页网站-龙湖东吴原著售楼处迎接您-龙湖东吴原著2025最新代价/户型/配套/小区处境
龙湖御潮印(龙湖御潮印售楼处)首页网站-2025龙湖御潮印房价_楼盘评测丨地方丨详情丨售楼处电线
上海绿宝园翡梵(售楼处)首页网站-上海2025绿宝园翡梵发售中央(营销中央)-上海绿宝园翡梵楼盘迎接您-小区处境-户型-代价-地方-楼盘详情-周边配套-交付韶华
转载请注明出处。

相关文章




精彩导读


热门资讯
关注我们